合泰·禧瑞府丨建面约249㎡奢居大平层,震撼感直击灵魂!

生活的美好,一个层面似乎难以全部呈现。合泰·禧瑞府,巧妙的把传统别墅的三层功能融于一层空间之内,于这一方天地间造就灵动多变的生活空间,匠心打造建面约169㎡-340㎡奢居大平层。
建面约249㎡的臻藏级大平层,以恢弘尺度展现未来生活场景,将社交功能与生活意趣融合,不仅满足多代同堂的全龄生活需求,更以灵动空间设计承载家庭成员的多元生活场景。

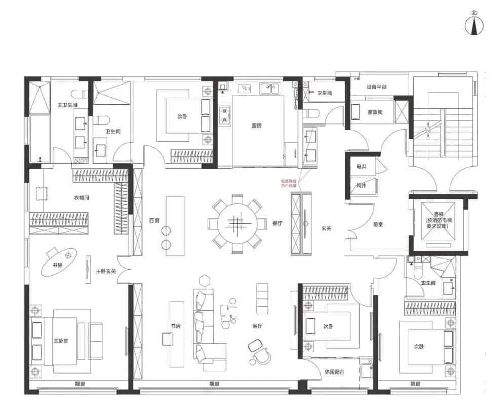
建面约249㎡户型图
踏入建面约249㎡的实景空间,开启理想奢居的生活体验。
首先便是那气势恢宏的玄关,宛如步入一座艺术殿堂,黑色背景墙+西方抽象艺术装饰画,入户即营造一种低调奢华的氛围。这样的玄关,不仅为归家增添了一份仪式感与私密感,更巧妙地划分了室内外空间,有效阻挡了外界的喧嚣。

实景图
大平层的优势在于把空间内的动区如客厅、餐厅、厨房集中在入户一侧,日常活动与社交在这里热闹上演;静区的卧室分布于另一侧,私密安静,让休息不受丝毫干扰,居住舒适度直线上升。

合泰·禧瑞府的业主,首先就会被奢阔的客餐厅所吸引。
公区遵循现代人生活方式的灵动性,为后期设计提供更多想象空间,可根据主人喜好和生活节奏巧妙布局雅致会客区、闲适休闲区、静谧阅读区和温馨就餐区等。

实景图
禧瑞府建面约249㎡的实景样板间,餐厨、客厅与阳台采用一体化奢适设计,开阔的视野与充沛的自然采光相得益彰,流畅的动线巧妙串联起各个区域,方便家庭成员互动交流。无论是书桌前高效办公、沉浸书海,还是全景阳台上舒展瑜伽、悠然品茶,空间方显豁达,皆为主人营造尊崇的居住体验。

实景图
一体化空间的妙处就是阳光可以毫无遮挡的照进室内的每一处角落。冬日的午后,阳光洒在柔软的沙发上,一家人其乐融融坐在一起,温暖而惬意。

实景图
这里,不再只是定义为起居场所,而是家庭聚会、朋友欢聚的温馨港湾,既呈现着幸福满溢的生活氛围,更是彰显着主人品味与气度的社交空间。

中国人重视团聚,大家庭共居一处方显温情。

实景图
禧瑞府建面约249㎡户型采用4+1室灵动设计,契合大家庭居住所需,客厅内的灵动空间可依需改作客卧,轻松容纳亲友小住。

实景图
另外,可根据全龄家庭成长需求,不同阶段改造为不同功能的一室——孩童时是独立成长的儿童天地,长辈居时化身为静谧颐养之所,自己用时则能变身专属书房或健身房,一房多能,轻松适配多元人生,让房子与家庭一起“成长”。

建面约249㎡的空间里,以三大套房式设计与四卫配置,勾勒出惬意舒适的生活。

实景图
主卧套房拥有独立书房,静谧而雅致,让主人能在此享受独处时光;步入式衣帽间收纳着四季的华服美饰,尽显精致生活。温馨的用餐区,为二人世界增添浪漫氛围。主卫空间双洗手台,男女主人可同时使用,豪华浴缸置于其中,忙碌一天后,泡个热水澡,缓解一身疲惫。


实景图
另外两间套房式卧室同样贴心,均配备卫生间,让每个家庭成员都能拥有独立的洗漱空间,既方便了家庭成员的日常起居,又保障了彼此的隐私,让生活互不干扰,尽享惬意。

实景图
清晨,您在阳光轻抚中悠然醒来,主卧套房的衣帽间满是心仪衣物,豪华卫浴间带来舒适洗漱体验。慵懒的午后,暖阳相伴,或与孩子嬉戏,或于书桌、客厅捧书品茗,静享岁月。傍晚,手持红酒或威士忌,立于阳台,微风轻拂,俯瞰这座城市的璀璨夜景。
合泰·禧瑞府,1:1还原都市生活细节,让美好生活不再只是想象。








